Treetop 樹昌實業 專業於CRPS冗餘電源及高階伺服器機箱.

我們是 Acbel 代理商

康舒 Acbel 為台灣上市公司,為全球交換式電源供應器領導者之一。 除提供應用於個人電腦、智慧家電、智慧型手機、伺服器、網通設備等領域電源解決方案。

2U Single 550W (FSD049)

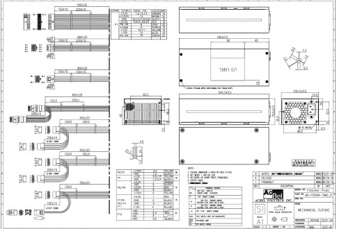
AcBel FSD049-7HAG 電源供應器

AcBel 康舒電子推出的 FSD049-7HAG 系列電源供應器(型號:EP2A5551A-B)是一款高效能、穩定性卓越的550瓦工業級電源解決方案,適用於對品質與穩定性要求極高的系統平台。該產品具備多重輸出電壓功能,包含 +3.3V、+5V、+12V、-12V 及 +5VSB,可提供最高總輸出功率達 550W,並支援峰值輸出至 700W,滿足高效能設備在運作高峰時的瞬間電力需求。

本電源供應器支援100V至240V的寬電壓輸入範圍,通過多國安全與電磁相容(EMI)認證,包括CCC、UL、CUL、CB、TUV、KCC、FCC、CE及BSMI等,符合CISPR22 Class B規範,有效減少電磁干擾,確保系統運作穩定無虞。其轉換效率達82%以上(在20%、50%、80%負載條件下),且待機功耗低於0.5W,為節能設計樹立良好典範。

FSD049-000G 內建多項保護機制,包括過電壓保護(OVP)、過電流保護(OCP)及短路保護(SCP),可在異常情況下主動中斷輸出,避免設備受損,並在排除故障後自動恢復運作。其使用12V DC、60x25mm 高效風扇主動散熱設計,確保在最高50°C運作環境中仍能穩定輸出額定功率。

此電源具備優異的環境耐受力,包括工作溫度 0°C 至 50°C、儲存溫度 -20°C 至 80°C、5~95%非冷凝濕度範圍內皆可穩定運行,並能承受最高5000米海拔高度下的操作條件。產品通過 BELLCORE SR-332 標準,MTBF 壽命超過10萬小時,在嚴苛條件下仍展現出高度可靠性。

尺寸為 240 x 100 x 70 mm,設計緊湊、易於安裝,產品標籤上明確標示輸入參數、輸出功率與製造資訊,方便用戶識別與維護。FSD049-000G 是伺服器、工作站、網通設備與高效能工業設備的理想電源選擇。

6
Images
2U Single 550W 01
2U Single 550W 01
2U Single 550W 02
2U Single 550W 02
2U Single 550W 03
2U Single 550W 03
FSD049-7HAG-MO
FSD049-7HAG-MO